Wohnen Am Neumarkt
Wohnen und Gewerbe /// Hamburg Wandsbek /// BGF ca. 36.000 m² /// 2025 (Fertigstellung)
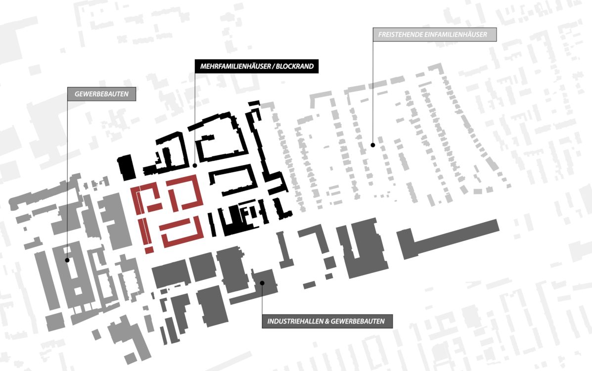
Auf dem ca. 22.800 m² großen Grundstück des ehemaligen Sportplatzes am Neumarkt 15 in Hamburg Wandsbek entsteht ein neues durchmischtes Wohnquartier. Über drei Baufelder werden neun Häuser mit insgesamt ca. 380 Wohnungen realisiert, 30% davon öffentlich gefördert.
Das angrenzende Gebiet ist geprägt von Industrie mit städtischer Produktion. Das neue Quartier reagiert im Maßstab robust - die Fassaden hingegen bringen durch Ihre feine Ausgestaltung ein sanftes Gleichgewicht. Drei halb offene Blöcke zeigen sich nach außen in geschlossener Bauweise, während zum Quartiersinneren eine moderate Durchlässigkeit entsteht. Das Zentrum der Bebauung bildet ein öffentlicher Quartiersplatz mit angegliederten gemeinschaftlich-gewerblichen Nutzungen wie einer Kita und einem Café. Gestalterisch orientiert sich die Neubebauung, die sich am Außenrand des alten Schumacher’schen „Backsteingürtels“ befindet, in Materialität und Gliederung der Fassaden am „roten“ Hamburg der 1920er Jahre. Die einzelnen Baufelder erhalten eine jeweils eigenständige architektonische Ausprägung bei insgesamt deutlicher gestalterischer Verwandtschaft und klar erkennbaren, sich wiederholenden, übergeordneten Themen. Der östlich vorhandene Grüngürtel wird erhalten und durch Neupflanzungen gestärkt. Auch im Westen werden prägende Einzelbäume erhalten und in die neue Freiraumplanung integriert. Der Außenraum bietet den Bewohnern des neuen Quartiers eine hohe Aufenthaltsqualität und dient als Begegnungsraum für den gesamten Stadtteil.
Team: BHF Bendfeldt Herrmann Franke Landschaftsarchitekten
Visualisierung: bloom images
Mitarbeit: Aline Amore, Candela Garcia Parrado, Adrian Götz, Anna Griberman, Hannes Heitmüller, Marius Jungblut, Michael Krüger, Lars Rohde, Patric Unruh










