Gemeinschaftshof in Bergedorf
Wohnanlage /// Hamburg-Bergedorf /// BGF 6.240 m² /// 2015 - 2017
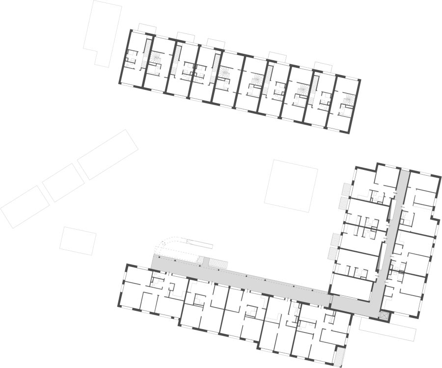
Der Neubau in Hamburg-Bergedorf muss sich in einem städtebaulich heterogenen und wenig geordneten Umfeld behaupten. Er vermittelt mit seinen 10 Reihenhäusern und 45 Wohnungen zwischen großmaßstäblichen Wohnsiedlungen im Westen und kleinteiligen Einfamilienhausgebieten im Norden. Kristallisationspunkt ist ein großzügiger Hof, der vielfältige Zonen und damit unterschiedliche Angebote schafft: Begegnung und Gemeinschaft werden gefördert, Rückzug aber ebenso ermöglicht.
Klare Kubaturen und eine identitätsstiftende, kräftig farbige Fassade bestimmen das architektonische Bild nach außen. Die Reihenhäuser treten farblich gegenüber dem Mehrfamilienhaus in warmen Grautönen zurück. Der Hauptkörper gliedert sich in mehrere Gebäudeabschnitte, die dem Straßenverlauf folgen. Die Kreuzung wird durch eine negative Ecke definiert, in der sich der Eingang zu den 45 teilweise über einen Laubengang erschlossenen Wohnungen befindet. Abstellräume und Fahrradstellplätze sind wegen des wenig tragfähigen Baugrunds als Nebenanlagen auf dem Grundstück verteilt und in die Freiraumplanung integriert.
Mitarbeit: Anna Gribermann, Candela Garcia Parrado, Patric Unruh
Fotos: Ralf Buscher


















