Edeka Neugraben – Vollsortimenter mit Anspruch
Verkaufsstätte /// Hamburg Neugraben /// BGF 3.000 m² /// 2014 – 2017
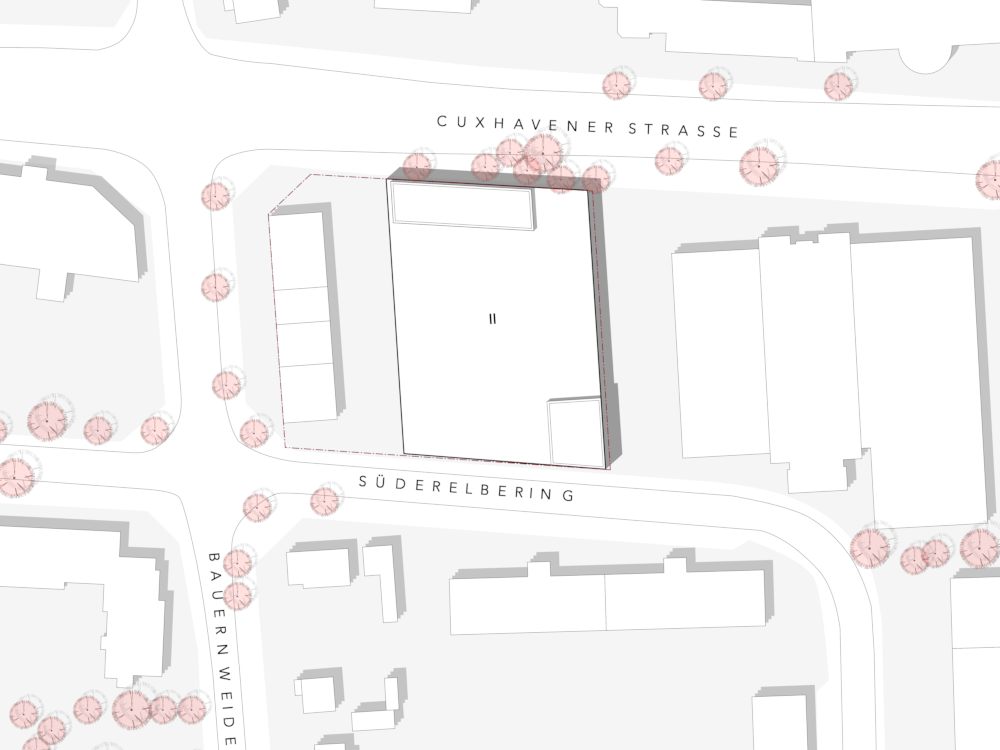
An einer Bundesstraße im Hamburger Süden tritt der neue EDEKA-Markt mit einer für diese Bauaufgabe nicht alltäglichen Präsenz in Erscheinung: ein großes, klares Bauvolumen, das sich in seiner Materialität zwar an die umgebende Nachkriegsbebauung anpasst, gleichwohl aber über die nötigen architektonischen Qualitäten verfügt, um sich in seiner Einfachheit zu behaupten.
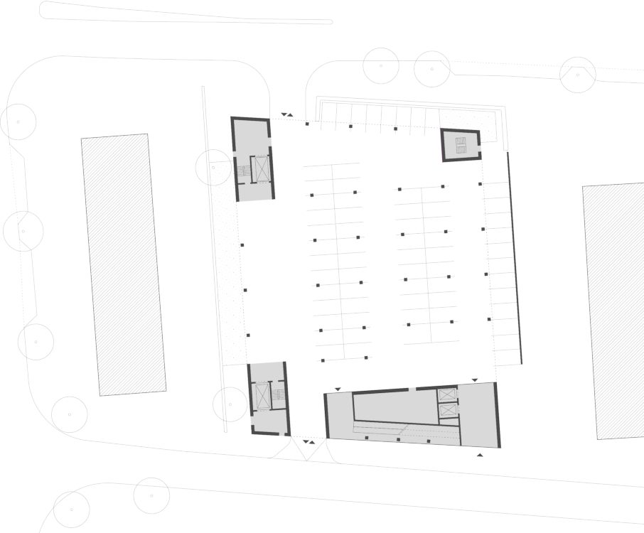
Der Entwurf basiert auf einer reduzierten Grundfigur, die durch großmaßstäbliche und jeweils besonders inszenierte Öffnungen gegliedert wird. Aufgrund der besonderen Lage an einer verkehrsreichen Ausfallstraße wurde die Verkaufsfläche im Obergeschoss angeordnet und das Erdgeschoss weitgehend freigehalten, um hier die notwendigen Stellplätze unterbringen zu können. Autofahrende Kundschaft gelangt also auf Straßenniveau, niederschwellig und unkompliziert, zu einem geschützten Parkplatz und von dort aus wettergeschützt in den Markt.
Das Gebäudekonzept beruht auf der Idee der dienenden und bedienten Räume, was in diesem Fall bedeutet, dass Lagerräume, aber auch Haupterschließung und Fluchttreppen in den vier „Füßen“ des Gebäudes untergebracht sind. Drei großformatige Öffnungen in der unteren Ebene werden jeweils durch robuste Sichtbeton-Elemente gefasst. Das Prinzip der Wegnahme und der Einschnitte wiederholt sich im Obergeschoss, in dem sowohl große „Schaufenster“ an Nord- und Südfassade als auch kleinere, schmale Belichtungsschlitze an der Westseite ins Grundvolumen eingeschnitten wurden.
Mitarbeit: Anna Griberman, Jirka Bars, Lars Rohde
Fotos: Piet Niemann
















