Klockmannhaus
Hostel /// Hamburg /// BGF ca. 7.800 m² /// 2010-2011
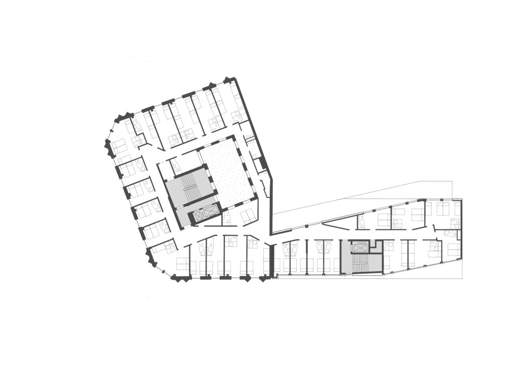
Das denkmalgeschützte, ehemalige Klockmannhaus am Hamburger Hauptbahnhof war nach einer Aufstockung in den 1920er Jahren eines der ersten Hochhäuser in der Hamburger Innenstadt und diente seitdem als Geschäftshaus für einen bekannten Lederwarenhändler. Nach unserer Planung wurde es vollständig saniert und zu einem Hostel für den Betreiber GENERATOR umgebaut. Unmittelbar anschließend entstand ein fünfgeschossiger Neubau, der den Altbau funktional ergänzt, gestalterisch jedoch einen neuen Akzent im Stadtbild setzt. Im Erdgeschoß sind öffentliche Funktionen, Geschäfte und Cafés angeordnet, in den oberen Geschossen befinden sich Gästezimmer mit insgesamt 650 Betten. Die Gestaltung der Innenräume ist dezidiert zeitgenössisch, knüpft aber dabei an die Expressivität der Klinkerfassade und deren polygonale Formgebung an.
Team: Ingenieurbüro Dr. Binnewies (Statik), Ingenieurgesellschaft Ridder und Meyn (TGA), Ingenieurbüro T. Wackermann (Brandschutz), Genest und Partner Ingenieurgesellschaft (Bauphysik)
Mitarbeit: Jirka Bars, Julia Dörmann, Meike Ziegler, Gerald Kappelmann, Markus Weck, Ove Jacobsen, A. Kitel, Volker Zinnsmeister
Fotos: Ralf Buscher




















