Stulz - Firmenzentrale in präzisem Gewand
Firmenzentrale /// Hamburg /// BGF 4.200 m² /// 2009 – 2011
Die Firma STULZ, ein heute weltweit tätiges Familienunternehmen mit ca. 6000 Mitarbeitern, existiert bereits seit 1947. Ende der 1950er Jahre baute sie am Hauptsitz in Hamburg-Schnelsen ein für diese Zeit typisches Verwaltungsgebäude im Stil der internationalen Moderne. In den folgenden Jahrzehnten entwickelte sich die Technologiefirma beständig weiter zu einem Marktführer im Bereich der Präzisions-Klimatisierung. Diese technologische Ausrichtung diente uns - neben dem prägnanten Bestandsgebäude – als wichtigste Inspirationsquelle für den Entwurf der neuen Firmenzentrale.
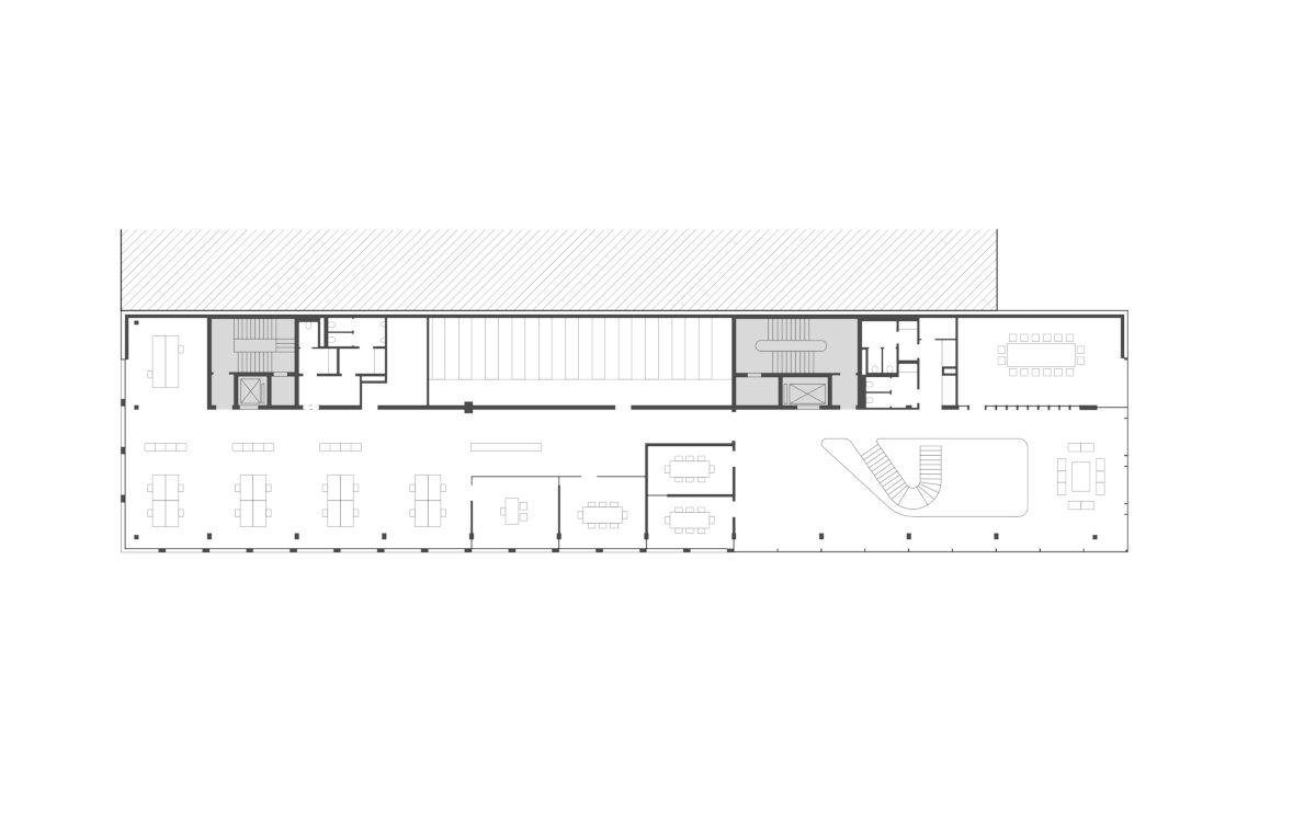
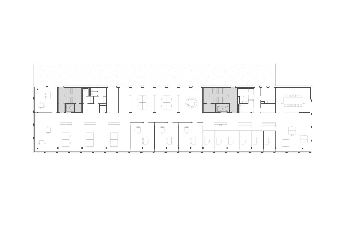
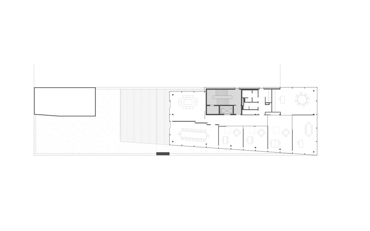
Der neue Baukörper ist umschlossen von einer technisch präzisen Hülle aus exakt gefügten, silbrig eloxierten, glatten Aluminiumtafeln sowie Fassadenelementen mit lasergeschnittenen Perforationen, die der natürlichen Belüftung dienen. Mit ihren durchlaufenden Fensterbändern übernimmt die Fassade zwar grundsätzlich die Formsprache der Moderne, bildet aber dabei unterschiedliche Funktionsbereiche deutlicher ab: So zeigen sich Foyer, Galerie und Showroom mit größeren Fensterflächen und ohne die markanten Belüftungselemente der Büros. Das Staffelgeschoß mit Besprechungs- und Vorstandsräumen dreht sich leicht aus der Straßenflucht und verleiht dem Haus so eine dezente Dynamik.
Der technisch-kühlen Anmutung der Fassade steht eine beinahe wohnliche Atmosphäre im Gebäudeinneren gegenüber. Hell, offen und großzügig wirkt das zweigeschossige Foyer, in dessen Mitte eine skulpturale, freitragende Treppe in das Obergeschoss führt. Auch hier wurde der Gedanke der 50er-Jahre-Moderne aufgegriffen und zeitgemäß umgesetzt. Die Farbgestaltung zwischen hellen Farbabstufungen, Brauntönen und einem dunklem Erschließungskern sowie die Dynamik der Treppenform lassen den Raum seriös und leicht zugleich wirken.
Team: Ingenieurbüro Dr. Binnewies (Statik), TWP Torlinski Wendt + Partner (TGA), WTM Engineers (Brandschutz)
Mitarbeit: Jirka Bars, Jörn-Ole Stellmann, Christiane Lange, Cosima Nolte, Mareike von Sievers
Fotos: Meike Hansen






















